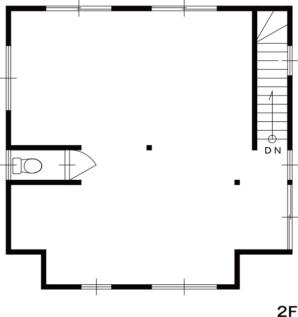
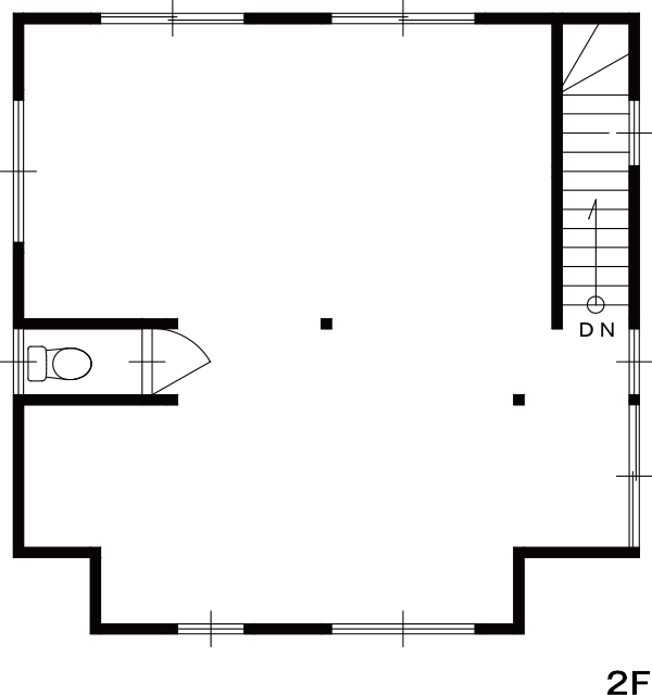
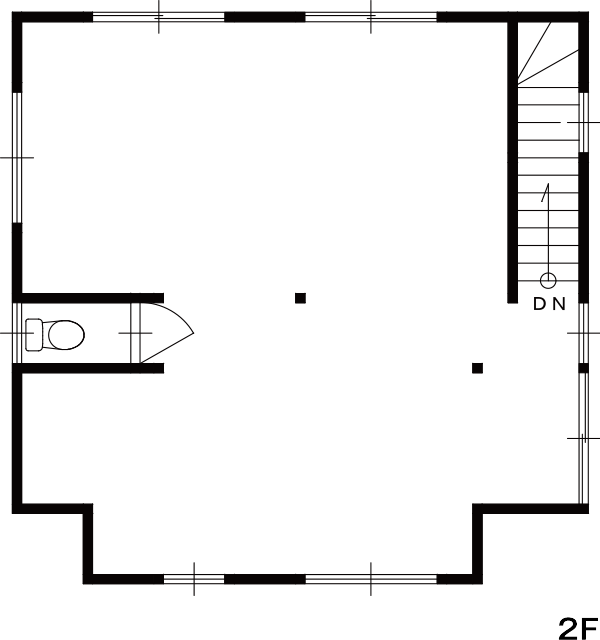
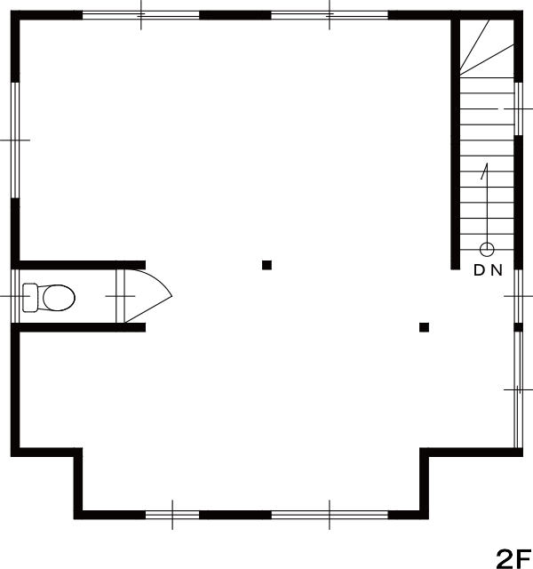
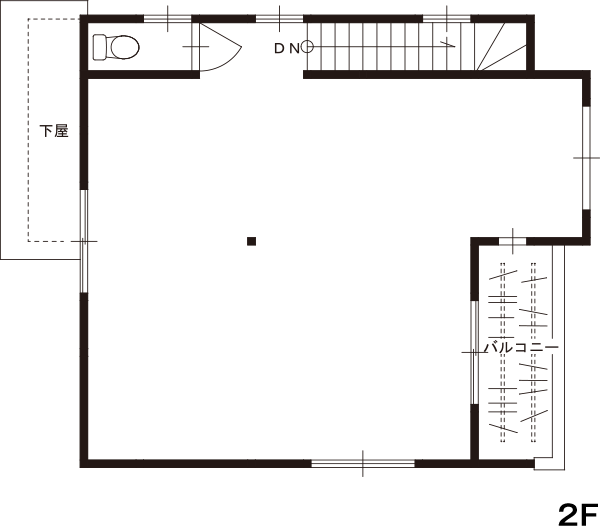
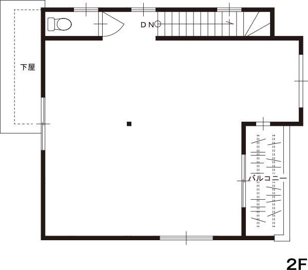
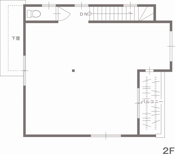
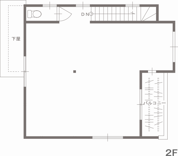
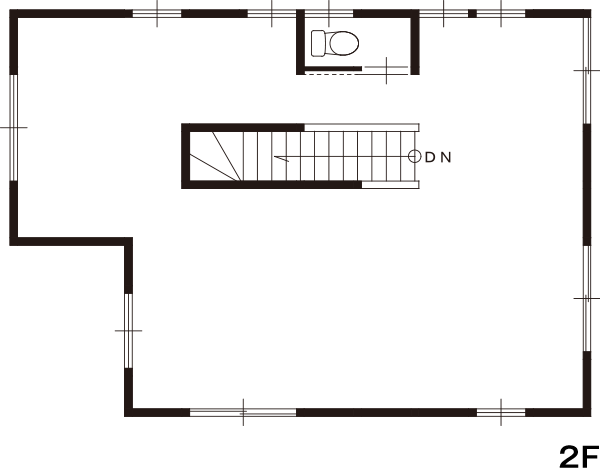
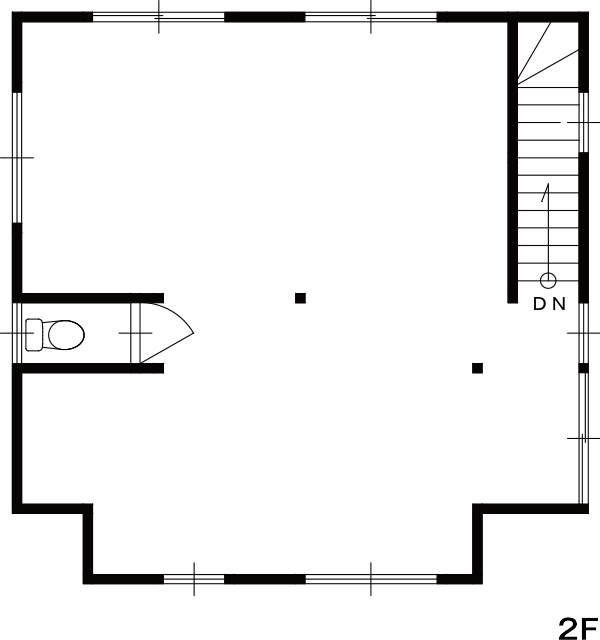
コンパクトな平面ながら回遊動線と室に応じた収納を配置。
コンパクトな平面ながら回遊動線と室に応じた収納を配置。
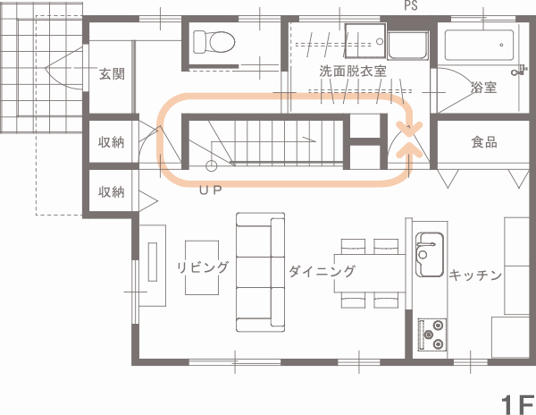
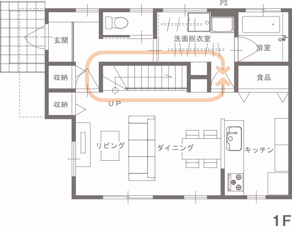
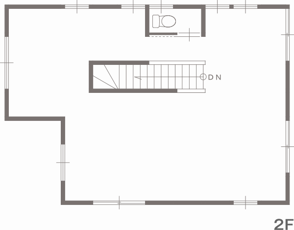
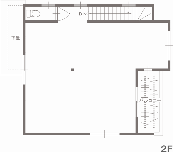
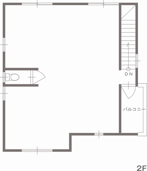
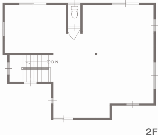
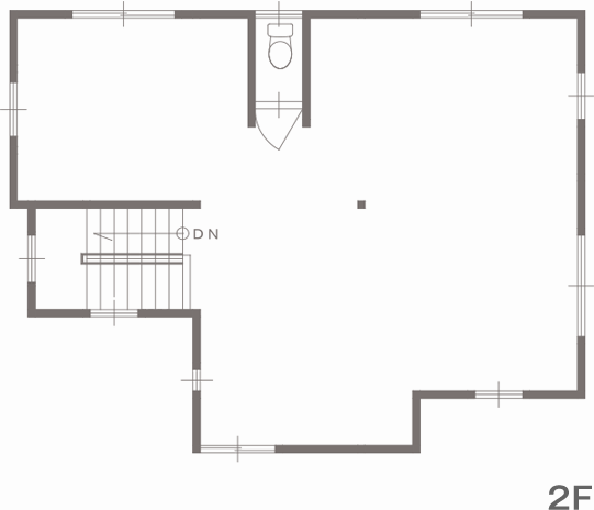
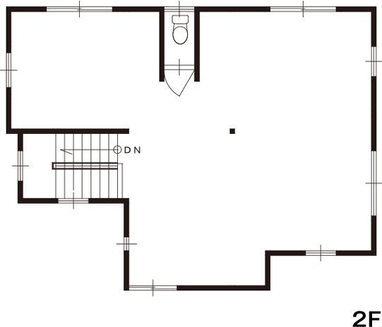
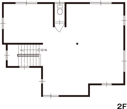
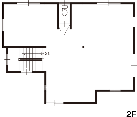
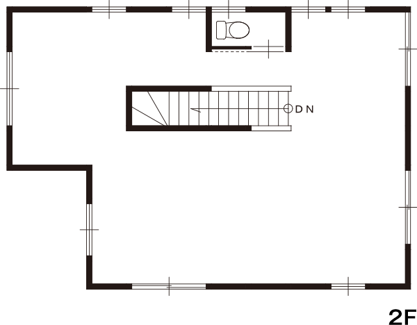
オープン階段を中心に回遊動線を配置。階段下収納が活躍します。
オープン階段を中心に回遊動線を配置。階段下収納が活躍します。
階段併設の玄関ホールは6畳と広く、趣味の物や観葉植物を置いて楽しめます。
階段併設の玄関ホールは6畳と広く、趣味の物や観葉植物を置いて楽しめます。
キッチン併設のスタディコーナーは、奥様やお子様の作業スペースとしてご利用いただけます。
キッチン併設のスタディコーナーは、奥様やお子様の作業スペースとしてご利用いただけます。
水周りがひとつになった回遊動線は物の行き来を少なくして家事を助けてくれます。
水周りがひとつになった回遊動線は物の行き来を少なくして家事を助けてくれます。
1階中央の収納とスタディカウンター中心の回遊動線がすべての部屋にアクセスできます。
1階中央の収納とスタディカウンター中心の回遊動線がすべての部屋にアクセスできます。
本体工事に含まれる標準仕様の内容
※プランによっては含まれない場合がございます。

















































































































































































